电子报阅读机
2026-03-25
星期三
当前报纸名称:今晚报

“跃层生活” 垂直户型唤醒家的温度

日期:02-05
字号:
版面:第21版:专刊       上一篇    下一篇

  在当代城市居住空间日益紧凑的今天,一种特殊的住宅形态——跃层户型,正以其独特的垂直结构悄然重塑着中国家庭的相处模式。与传统的平层住宅不同,跃层通过楼板分隔形成的立体空间,不仅是一种建筑形式,更被不少设计师和居住者视为“家庭情感的培育器”。

  有人认为“跃层生活”的选择只会在“公寓”产品中出现,实际上,与LOFT不能相提并论的是“跃层生活”迷人的地方在于它创造了“既分离又相连”的家庭关系。客厅、餐厅、厨房等公共区域通常位于下层,卧室、书房等私密空间置于上层。这种垂直分隔让家庭成员既能拥有自己的独立天地,又不脱离家庭的核心场景。这种空间中的情感逻辑让爱有了更多的温度与元素。

  “跃层生活”的流行不仅给爱更多的点缀,更折射出当代选择婚房的置业者对居住空间的理解深化。人们不再仅仅追求面积大小,更开始关注空间如何塑造关系、建筑如何服务情感。随着城市居住形态的不断演进,“跃层生活”所代表的“垂直亲情”模式揭示了家的本质不在于四壁围合的面积,而在于那些让爱得以流动、生长和沉淀的空间逻辑。在楼层之间上下穿行的,不只是相爱的人彼此的身影,更是日复一日编织成家庭记忆的温暖线索。

  “跃层生活”不只是为爱筑巢选择的户型,更是相爱的人未来融入家庭的哲学。

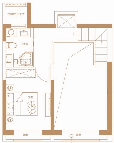
  位于河北区101平方米左右的“跃层生活”空间价值约230万元,蕴含着彼此间深深的爱意与缠绵的情感堆积。墅质享受的立体空间满载时尚与流行,阳光客厅以双层挑空架构尽显大气完美的格局设计,南向纵向的双层飘窗更以黄金入射45度引入。当你的恋人闲散于阳光飘窗,你缓缓地踏着楼梯悄悄走近,阳光与爱侣,正是一幅充满爱的画卷。

  喜欢该户型的婚房置业者可拨打13612081010参与实地品鉴。

  户型图由企业提供