电子报阅读机
2026-05-23
星期六
当前报纸名称:包头日报

包头市赛汗塔拉城中草原保护条例

日期:12-17
字号:
版面:第06版:政务       上一篇    下一篇

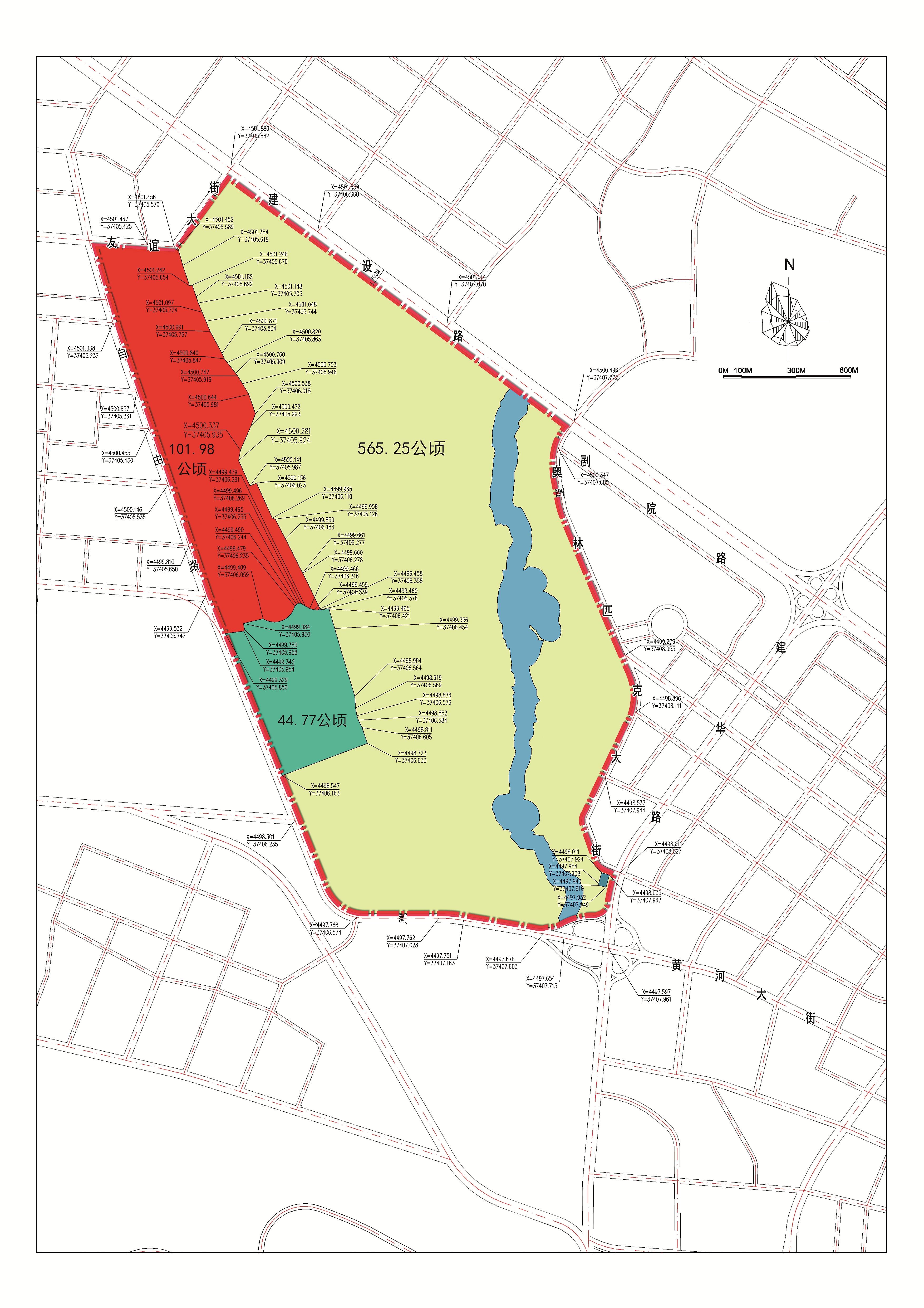
包头市赛汗塔拉城中草原用地界线示意图

第一章 总 则

第一条 为了保护赛汗塔拉城中草原(以下简称城中草原),发挥生态功能,改善城市人居环境和生态环境,根据有关法律、法规,结合本市实际,制定本条例。

第二条 从事城中草原的规划、建设、保护、管理、利用、监督检查活动,应当遵守本条例。

第三条 城中草原保护工作坚持中国共产党的领导,以铸牢中华民族共同体意识为主线,以生态优先、绿色发展为导向,坚持统一规划、严格保护、合理利用的原则。

第四条 城中草原行政主管部门负责城中草原的监督管理工作。

城中草原所在地人民政府,市人民政府发展改革、财政、自然资源、生态环境、住房和城乡建设、水务、文化旅游广电、应急管理、体育、林业和草原等部门以及消防救援机构在各自的职责范围内,做好城中草原保护的相关工作。

第五条 市人民政府应当根据生态功能恢复、管护和自然景观修复等实际需要,按照事权与支出责任相适应的原则,将城中草原保护和管理资金列入财政预算。

第六条 鼓励支持公民、法人和其他组织采取捐助等多种形式参与保护城中草原活动。

第七条 任何单位和个人都有权对违反本条例规定的行为向城中草原行政主管部门投诉、举报。收到投诉、举报后,城中草原行政主管部门应当及时依法处理,向投诉、举报人反馈处理结果。

城中草原行政主管部门应当对投诉、举报人的相关信息予以保密,保护投诉、举报人的合法权益。

第二章 规划与建设

第八条 城中草原行政主管部门应当会同市人民政府自然资源、生态环境、住房和城乡建设、文化旅游广电、林业和草原等部门,根据《包头市国土空间总体规划》编制《赛汗塔拉城中草原保护规划》。《赛汗塔拉城中草原保护规划》由市人民政府提请市人民代表大会常务委员会审议,常务委员会组成人员的审议意见交由市人民政府研究处理。《赛汗塔拉城中草原保护规划》经市人民政府批准后,向社会公布,并组织实施。

第九条 编制《赛汗塔拉城中草原保护规划》应当与其他相关规划相衔接。

编制《赛汗塔拉城中草原保护规划》应当根据城中草原功能特点和水资源、动植物资源状况以及现有规模、布局,确定保护范围和措施,确定用地的界线和具体坐标。

编制《赛汗塔拉城中草原保护规划》应当组织开展规划环境影响评价,并通过论证会、听证会等形式,广泛征求有关单位、专家和公众意见。

第十条 经批准的《赛汗塔拉城中草原保护规划》不得擅自修改。因保护和管理工作确需修改的,应当按照批准权限和程序办理。

第十一条 城中草原总规划面积为712公顷,划分为核心保护区和控制保护区。

核心保护区面积为565.25公顷,控制保护区面积为146.75公顷。

第十二条 任何单位和个人不得侵占、买卖、转让、租赁或者破坏城中草原,不得改变城中草原性质或者减少城中草原面积。

第十三条 在城中草原周边一公里范围内进行的各项建设,其高度、体量、造型、风格和色调等,应当与城中草原自然生态景观相协调。在《赛汗塔拉城中草原保护规划》中,应当确定相应的指标。

第十四条 禁止在核心保护区范围内进行任何与城中草原保护无关的建(构)筑物、游乐场所和生产经营设施等建设活动。

因城中草原保护需要进行的基础设施、养护设施建设活动,应当依法经城中草原行政主管部门会同市人民政府自然资源等相关部门严格审核,报市人民政府批准后方可进行。

第十五条 经批准的在核心保护区范围内进行建设活动,应当采取围挡封闭施工、建筑垃圾袋装处理、加强施工车辆管理等措施;建设活动结束后,应当及时清理场地,恢复原状。

第十六条 核心保护区内既有的生产经营设施和与城中草原保护无关的建(构)筑物应当逐步退出。

第十七条 在控制保护区内,禁止建设污染环境、破坏资源、影响自然生态功能的生产经营设施。

第十八条 控制保护区内的建设项目应当依法经城中草原行政主管部门会同自然资源、住房和城乡建设、生态环境等部门严格审核,报市人民政府批准后进行。

第三章 保护与管理

第十九条 在核心保护区内禁止从事下列活动:

(一)摆摊设点,张挂广告;

(二)使用明火;

(三)捕猎野生动物,影响候鸟栖息、捡拾鸟卵或者捕捞鱼及其他水生生物;

(四)排放污水,倾倒废弃物及垃圾,投放有毒有害物质;

(五)损坏各类公共设施设备;

(六)移植、砍伐树木,种植各类与草原植被无关的植物,破坏城中草原原有植被景观;

(七)私设围挡、设立园中园;

(八)开垦、挖沙、取土;

(九)其他损害环境与资源的活动。

第二十条 禁止各种机动车辆进入核心保护区内。

因抢险救灾、医疗救护、管养保护和经批准的施工车辆以及城中草原行政主管部门用于观光的电动车,需要进入核心保护区的,应当遵守城中草原管理的有关规定。

在核心保护区入口处应当设置明显的禁止机动车驶入标志。

第二十一条 禁止在核心保护区内举办损坏植被的活动。

因科学实验、教学实习、植物科普教育、标本采集,需要在核心保护区内开展活动的,应当报城中草原行政主管部门批准,并制定相应的生态环境保护方案,划定区域和线路,设置明显的标识。

第二十二条 禁止在核心保护区内圈养、放养牲畜和禽类。

因草原景观特色的需要,在核心保护区内放养马、羊、鹿等牲畜的,应当经城中草原行政主管部门批准。放养牲畜应当严格控制数量,不得对植被造成损害,并在指定的时限和范围内放养。

第二十三条 禁止在核心保护区内割草。

因养护植被或者防火需要确需割草的,应当经城中草原行政主管部门批准,并在规定的时限和范围内进行。

第二十四条 在控制保护区内从事经营活动,应当遵守下列规定:

(一)符合《赛汗塔拉城中草原保护规划》要求;

(二)及时清运各种经营活动所产生的垃圾,做好经营场所内的清扫和保洁工作,实施垃圾分类处理;

(三)不得对城中草原造成污染或者损害动植物;

(四)不得改变或者扩大入园时的经营性质和范围;

(五)其他管理规定。

第二十五条 进入城中草原的人员,应当遵守城中草原管理制度,爱护动植物和公共设施,遵守公共秩序和社会公德。

第二十六条 城中草原行政主管部门应当在核心保护区周边设置核心保护区界标。任何单位和个人不得损坏、移动核心保护区界标。

第二十七条 市人民政府应当对核心保护区内出现植物退化、土地盐碱化的区域,制定治理方案,恢复植被。种植植物应当采用适合本土气候、土壤的品种。引进的植物应当满足生态安全性、生物多样性和公众健康保护要求。

第二十八条 禁止在城中草原内使用剧毒、高残留以及可能导致二次中毒的农药。使用其他农药可能对人体产生危害的,应当设立有害标识予以警示。

第二十九条 建立城中草原湿地资源优先保护制度。

城中草原范围内及周边的新建项目施工,应当采取有效措施,保护地下水位不受影响。

对城中草原湿地水源应当采取有效的保护措施。市人民政府应当对因水资源缺乏导致功能退化的城中草原湿地,采取措施,通过恢复自然水系或者人工调水等措施及时进行补水,恢复湿地功能。

第三十条 城中草原行政主管部门应当制定灭火、溺水、极端天气、游客高峰期处置等应急预案,设置各种必要的安全设施和警示标识。发生突发事件时,应当立即启动应急预案,采取救援措施。

第三十一条 城中草原行政主管部门应当配置符合环境卫生要求的厕所、垃圾箱等设施和设备,建立环境卫生责任制。

第三十二条 城中草原行政主管部门应当为公众在城中草原内进行休闲和体育锻炼提供方便。

第三十三条 城中草原行政主管部门和相关部门应当建立健全执法协作机制,开展联合执法。对发现的违法行为,由城中草原行政主管部门和相关部门按照各自职责依法予以处理。

第四章 防火和灭火

第三十四条 城中草原行政主管部门应当建立专业防扑火队,开展城中草原范围内的防火工作,配合消防救援机构开展城中草原范围内的灭火工作,业务上接受消防救援机构的指导。

专业防扑火队的机构和人员应当保持稳定,并定期进行防火、灭火培训和演练。

第三十五条 每年的10月15日至次年的5月30日为城中草原绝对防火期。

绝对防火期内,专业防扑火队实行二十四小时值班,应当对进入核心保护区的人员进行防火检查,纠正违反防火规定的行为。

专业防扑火队应当在城中草原进行经常性巡查,发现火灾隐患及时排除。

第三十六条 市人民政府应当在城中草原防火重点区域周围建立防火隔离带,并安装火险监控设施设备和室外消火栓系统、移动式灭火器等消防设施、器材。

第五章 法律责任

第三十七条 违反本条例规定的行为,有关法律、法规已经作出具体处罚规定的,从其规定。

第三十八条 违反本条例第十四条规定,在核心保护区内进行与城中草原保护无关的建(构)筑物、游乐场所和生产经营设施等建设活动的,由城中草原行政主管部门及时制止,并责令其停止建设,限期拆除,恢复原状;逾期未拆除的,由市人民政府责成有关部门依法强制拆除,处10万元以上30万元以下罚款;对城中草原造成损失的,依法承担赔偿责任。

第三十九条 违反本条例第十五条规定,施工结束后未及时清理场地的,由城中草原行政主管部门责令限期改正,逾期未改正的处3万元以上10万元以下罚款;造成城中草原生态功能和景观破坏的,依法承担赔偿责任。

第四十条 违反本条例第十九条规定的,由城中草原行政主管部门责令限期改正,按照下列规定处罚;造成损失的,依法承担赔偿责任:

(一)违反第一项规定,摆摊设点、张挂广告的,处500元以上1000元以下罚款;

(二)违反第五项规定,损坏公共设施的,处该设施价值一倍以上三倍以下罚款;

(三)违反第六项规定,种植各类与草原植被无关的植物的,处500元以上1000元以下罚款;

(四)违反第七项规定,私设围挡、设立园中园的,处2万元以上5万元以下罚款。

第四十一条 违反本条例第二十条规定,擅自驾驶机动车辆进入核心保护区的,由城中草原行政主管部门责令其离开核心保护区,处500元以上1000元以下罚款。

第四十二条 违反本条例第二十一条规定,举办损坏植被的活动的,由城中草原行政主管部门依据职权责令停止违法行为,没收非法财物和违法所得,可以并处违法所得一倍以上五倍以下罚款;没有违法所得的,可以并处5万元以下罚款;造成损失的,依法承担赔偿责任。

第四十三条 违反本条例第二十二条规定,擅自圈养、放养牲畜和禽类的,由城中草原行政主管部门责令改正,处2000元以上5000元以下罚款;造成损失的,依法承担赔偿责任。

第四十四条 违反本条例第二十三条规定,擅自割草的,由城中草原行政主管部门责令改正,处1000元以上2000元以下罚款。

第四十五条 违反本条例第二十六条规定,损害、移动核心保护区界标的,由城中草原行政主管部门责令改正,恢复原状,处1000元以上2000元以下罚款。

第四十六条 在城中草原监督管理工作中玩忽职守、滥用职权、徇私舞弊的,对直接负责的主管人员和其他直接责任人员依法给予处分;构成犯罪的,依法追究刑事责任。

第六章 附 则

第四十七条 包头市赛汗塔拉城中草原用地界线示意图(附图)附后。

第四十八条 本条例自2014年3月1日起施行。2007年5月30日包头市第十二届人民代表大会常务委员会第二十九次会议通过、2007年8月3日内蒙古自治区第十届人民代表大会常务委员会第二十九次会议批准的《包头市赛汗塔拉城中草原保护条例》同时废止。

注:城中草原总规划面积为712公顷,其中核心保护区面积为565.25公顷,控制保护区面积为146.75公顷。