电子报阅读机
2026-05-23
星期六
当前报纸名称:包头日报

包头市人民代表大会常务委员会关于修改《包头市赛汗塔拉城中草原保护条例》的决定

日期:12-17
字号:
版面:第06版:政务       上一篇    下一篇

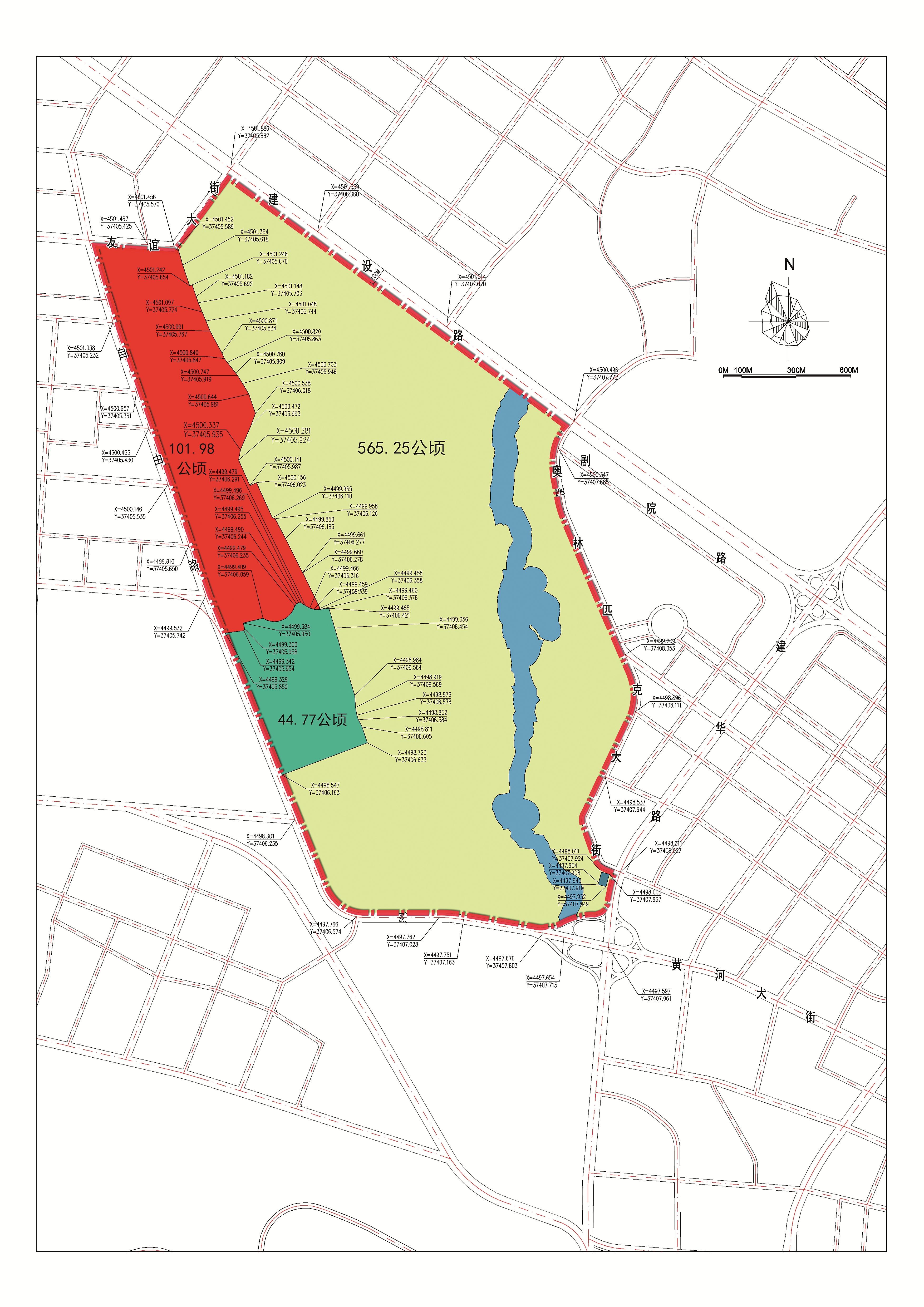
包头市赛汗塔拉城中草原用地界线示意图

《包头市人民代表大会常务委员会关于修改〈包头市赛汗塔拉城中草原保护条例〉的决定》已由包头市第十六届人民代表大会常务委员会第三十四次会议于2025年11月10日通过,经内蒙古自治区第十四届人民代表大会常务委员会第二十三次会议于2025年11月27日批准,现予公布,自2026年1月1日起施行。

包头市人民代表大会常务委员会

2025年12月9日

包头市第十六届人民代表大会常务委员会第三十四次会议决定,对《包头市赛汗塔拉城中草原保护条例》作如下修改:

一、将第一条修改为:“为了保护赛汗塔拉城中草原(以下简称城中草原),发挥生态功能,改善城市人居环境和生态环境,根据有关法律、法规,结合本市实际,制定本条例。”

二、将第三条修改为:“城中草原保护工作坚持中国共产党的领导,以铸牢中华民族共同体意识为主线,以生态优先、绿色发展为导向,坚持统一规划、严格保护、合理利用的原则。”

三、将第四条修改为:“城中草原行政主管部门负责城中草原的监督管理工作。

“城中草原所在地人民政府,市人民政府发展改革、财政、自然资源、生态环境、住房和城乡建设、水务、文化旅游广电、应急管理、体育、林业和草原等部门以及消防救援机构在各自的职责范围内,做好城中草原保护的相关工作。”

四、将第五条修改为:“市人民政府应当根据生态功能恢复、管护和自然景观修复等实际需要,按照事权与支出责任相适应的原则,将城中草原保护和管理资金列入财政预算。”

五、增加一条,作为第七条:“任何单位和个人都有权对违反本条例规定的行为向城中草原行政主管部门投诉、举报。收到投诉、举报后,城中草原行政主管部门应当及时依法处理,向投诉、举报人反馈处理结果。

“城中草原行政主管部门应当对投诉、举报人的相关信息予以保密,保护投诉、举报人的合法权益。”

六、将第七条改为第八条,修改为:“城中草原行政主管部门应当会同市人民政府自然资源、生态环境、住房和城乡建设、文化旅游广电、林业和草原等部门,根据《包头市国土空间总体规划》编制《赛汗塔拉城中草原保护规划》。《赛汗塔拉城中草原保护规划》由市人民政府提请市人民代表大会常务委员会审议,常务委员会组成人员的审议意见交由市人民政府研究处理。《赛汗塔拉城中草原保护规划》经市人民政府批准后,向社会公布,并组织实施。”

七、将第八条改为第九条,修改为:“编制《赛汗塔拉城中草原保护规划》应当与其他相关规划相衔接。

“编制《赛汗塔拉城中草原保护规划》应当根据城中草原功能特点和水资源、动植物资源状况以及现有规模、布局,确定保护范围和措施,确定用地的界线和具体坐标。

“编制《赛汗塔拉城中草原保护规划》应当组织开展规划环境影响评价,并通过论证会、听证会等形式,广泛征求有关单位、专家和公众意见。”

八、将第十条改为第十一条,修改为:“城中草原总规划面积为712公顷,划分为核心保护区和控制保护区。

“核心保护区面积为565.25公顷,控制保护区面积为146.75公顷。”

九、将第十三条改为第十四条,将第二款修改为:“因城中草原保护需要进行的基础设施、养护设施建设活动,应当依法经城中草原行政主管部门会同市人民政府自然资源等相关部门严格审核,报市人民政府批准后方可进行。”

十、将第十六条修改为:“核心保护区内既有的生产经营设施和与城中草原保护无关的建(构)筑物应当逐步退出。”

十一、将第十七条改为第十八条,修改为:“控制保护区内的建设项目应当依法经城中草原行政主管部门会同自然资源、住房和城乡建设、生态环境等部门严格审核,报市人民政府批准后进行。”

十二、将第二十三条修改为:“禁止在核心保护区内割草。

“因养护植被或者防火需要确需割草的,应当经城中草原行政主管部门批准,并在规定的时限和范围内进行。”

十三、增加一条,作为第二十四条:“在控制保护区内从事经营活动,应当遵守下列规定:

“(一)符合《赛汗塔拉城中草原保护规划》要求;

“(二)及时清运各种经营活动所产生的垃圾,做好经营场所内的清扫和保洁工作,实施垃圾分类处理;

“(三)不得对城中草原造成污染或者损害动植物;

“(四)不得改变或者扩大入园时的经营性质和范围;

“(五)其他管理规定。”

十四、增加一条,作为第三十三条:“城中草原行政主管部门和相关部门应当建立健全执法协作机制,开展联合执法。对发现的违法行为,由城中草原行政主管部门和相关部门按照各自职责依法予以处理。”

十五、将第三十三条改为第三十四条,修改为:“城中草原行政主管部门应当建立专业防扑火队,开展城中草原范围内的防火工作,配合消防救援机构开展城中草原范围内的灭火工作,业务上接受消防救援机构的指导。

“专业防扑火队的机构和人员应当保持稳定,并定期进行防火、灭火培训和演练。”

十六、将第三十七条修改为:“违反本条例规定的行为,有关法律、法规已经作出具体处罚规定的,从其规定。”

十七、将第四十条修改为:“违反本条例第十九条规定的,由城中草原行政主管部门责令限期改正,按照下列规定处罚;造成损失的,依法承担赔偿责任:

“(一)违反第一项规定,摆摊设点、张挂广告的,处500元以上1000元以下罚款;

“(二)违反第五项规定,损坏公共设施的,处该设施价值一倍以上三倍以下罚款;

“(三)违反第六项规定,种植各类与草原植被无关的植物的,处500元以上1000元以下罚款;

“(四)违反第七项规定,私设围挡、设立园中园的,处2万元以上5万元以下罚款。”

十八、将第四十二条修改为:“违反本条例第二十一条规定,举办损坏植被的活动的,由城中草原行政主管部门依据职权责令停止违法行为,没收非法财物和违法所得,可以并处违法所得一倍以上五倍以下罚款;没有违法所得的,可以并处5万元以下罚款;造成损失的,依法承担赔偿责任。”

十九、将第四十七条改为第四十六条,修改为:“在城中草原监督管理工作中玩忽职守、滥用职权、徇私舞弊的,对直接负责的主管人员和其他直接责任人员依法给予处分;构成犯罪的,依法追究刑事责任。”

二十、删去第十二条、第二十四条、第三十六条、第四十五条。

二十一、对部分条文作以下修改:

(一)删去第二条中的“以及其他”。

(二)将第九条改为第十条,在其中的“城中草原”前增加“赛汗塔拉”。

(三)将第十一条改为第十二条,删去其中的“保护区的绿地”,将“不得改变绿地性质或者减少绿地面积”中的“绿地”修改为“城中草原”。

(四)将第十四条改为第十三条,将其中的“核心保护区”修改为“在城中草原”,“《城中草原保护规划》”修改为“《赛汗塔拉城中草原保护规划》”。

(五)将第十五条中的“恢复临时占用绿地原貌”修改为“恢复原状”。

(六)在第十九条中的“核心保护区”前增加“在”;删去第五项中的“、绿化设施”、第六项中的“和农作物”。

(七)在第二十条第二款中的“抢险”前增加“因”,将其中的“保护、”修改为“保护和”,将“需要进入核心保护区时”修改为“,需要进入核心保护区的”。

(八)删去第二十一条第一款中的“城中草原”、“集会、展览等”和第二款中的“开展”;将第二款中的“教学实习活动”修改为“教学实习”,“需要在城中草原核心保护区”修改为“需要在核心保护区”。

(九)将第二十二条中的“城中草原核心保护区”修改为“核心保护区”,删去“牛、”、“管理机构”。

(十)在第二十七条中的“核心保护区”前增加“市人民政府应当对”,“保护要求”前增加“和公众健康”;将“应当制定”修改为“制定”,“和”修改为“、”;删去“优先”。

(十一)删去第二十八条中的“核心保护区内进行鼠害、虫害和毒害草防治时,”;在“禁止”后增加“在城中草原内”,“导致”前增加“可能”。

(十二)将第二十九条第三款中的“管理机构”修改为“市人民政府”,删去其中的“协调有关部门”。

(十三)将第三十条中的“安全事故”修改为“突发事件”。

(十四)将第三十二条中的“市民”修改为“公众”。

(十五)将第三十四条改为第三十五条,将第二款中的“有权”修改为“应当”;删去第三款中的“核心保护区”。

(十六)将第三十五条改为第三十六条,将其中的“管理机构”修改为“市人民政府”。

(十七)将第三十八条中的“管理机构”修改为“行政主管部门”,删去“报告有关行政主管部门,由有关行政主管部门”。

(十八)将第三十九条中的“一万”修改为“3万”,“三万”修改为“10万”,删去其中的“施工过程中未采取相应措施,”、“、恢复临时占用绿地”。

(十九)将第四十一条中的“城中草原核心保护区”修改为“核心保护区”。

(二十)在第四十三条中的“罚款”后增加“;造成损失的,依法承担赔偿责任”。

(二十一)将第四十六条改为第四十五条,删去其中的“擅自”、“其”。

(二十二)将第四十九条改为第四十七条,删去其中的“核心保护区”。

(二十三)将第二十条第二款、第二十六条、第三十条、第三十一条、第三十二条中的“管理机构”修改为“城中草原行政主管部门”。

(二十四)将第三十八条、第四十一条、第四十三条、第四十四条、第四十六条中的“并处”修改为“处”。

(二十五)将罚款金额由汉字修改为阿拉伯数字。

本决定自2026年1月1日起施行。

《包头市赛汗塔拉城中草原保护条例》根据本决定作相应修改并对条文顺序作相应调整,重新公布。

注:城中草原总规划面积为712公顷,其中核心保护区面积为565.25公顷,控制保护区面积为146.75公顷。